Maison de vente 4 chambres, CACJ246912FLO Vente in Floresti

Floresti, FLORESTI
170000 EURO
Imi acord consimtamantul cu privire la prelucrarea datelor colectate prin acest formular, conform politicii de protectie a datelor personale care este detaliata AICI.
Maison de vente 4 chambres, CACJ246912FLO-1
Maison de vente 4 chambres, CACJ246912FLO-2
Maison de vente 4 chambres, CACJ246912FLO-3
Maison de vente 4 chambres, CACJ246912FLO-4
  • IDCACJ246912FLO
  • Surface120 mp
  • Chambres 4
  • Salles de bains2
  • Surface terrestre200 mp

Description

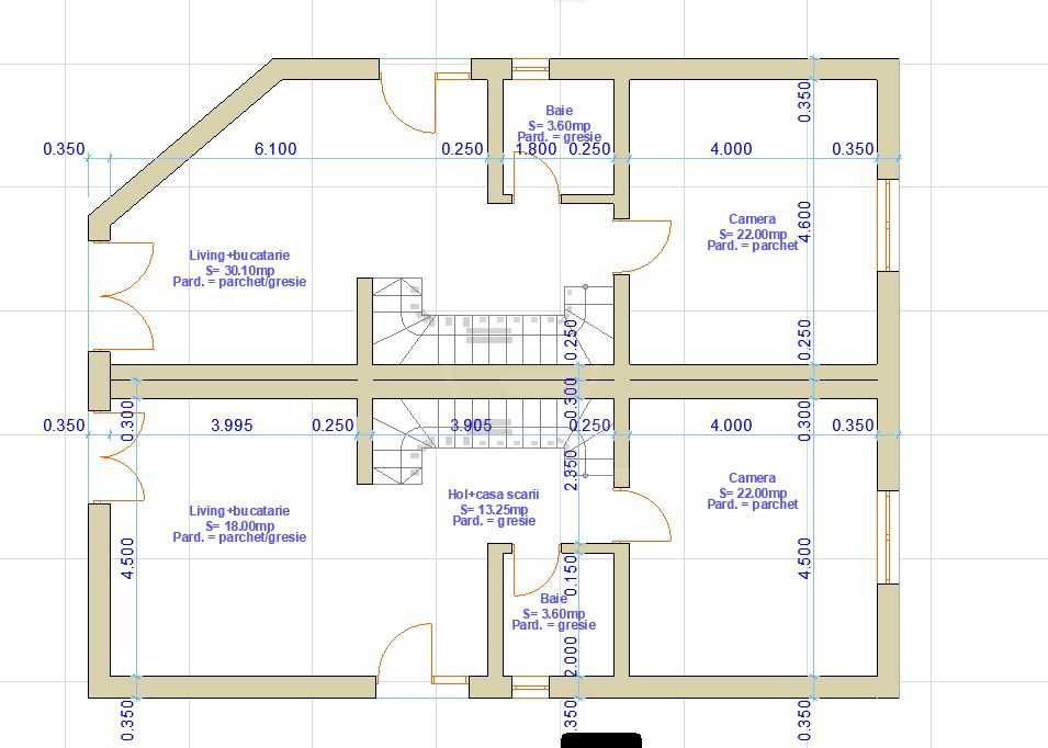
Vă propunem spre vânzare o casă tip duplex situată într-una dintre cele mai apreciate zone din Florești, în apropierea centrului, într-un cartier liniștit, cu mult spațiu verde și acces rapid la toate punctele de interes. Proprietatea se află la doar câțiva pași de școala din Florești, ceea ce o face ideală pentru familii cu copii, dar și în imediata vecinătate a magazinelor, marketurilor, stației de taxi și a mijloacelor de transport în comun, oferind astfel confort și mobilitate în viața de zi cu zi. Casa are o suprafață utilă de 120 mp și este amplasată pe un teren de 200 mp, fiind parte dintr-o construcție nouă, realizată din materiale de calitate: zidărie din cărămidă, fundație solidă din beton, acoperiș din tablă și izolație exterioară. Compartimentarea este gândită practic și modern: la parter se regăsesc holul de acces, livingul cu bucătărie open-space, o cameră și o baie, iar la etaj sunt amenajate două dormitoare luminoase, o baie și un balcon cu vedere către zona verde din împrejurimi. Locuința este dotată cu centrală termică proprie, ferestre termopan cu 3 sticle, ușă din PVC, iar în curte există acces auto și o grădină ideală pentru relaxare. Poziționarea excelentă, într-o zonă centrală, liniștită și înconjurată de natură, precum și proximitatea față de școală, magazine și stații de transport, transformă această proprietate într-o alegere ideală pentru cei care caută confort și calitate într-un mediu plăcut. PRETUL INCLUDE TVA. Dacă această ofertă vă interesează sau doriți să descoperiți și alte opțiuni, vă așteptăm cu drag la sediul EDIL Florești, Str. Eroilor nr. 25, ap. 15 (et. 1), sau telefonic pentru mai multe detalii. CACJ246912

Montre plus

Détails

  • Nouvelle construction
  • Opportunité d'investissement
  • Année de construction : 2025
  • 2 parkings
  • Surface terrestre : 200 mp
  • Semi-fini
  • Non meublé
  • Fenêtres isolantes avec trois vitres
  • Chauffage central, chauffage par le sol

Marius Coprean 0799-926550
18/11/2025

Partager